89㎡北歐“輕生活”丨詩意浪漫的家
2020/10/25 0:00:00⊙業主需求丨Owner demand
1.家庭結構6口之家,夫妻和兩個女孩,自己父母會幫忙帶小孩
2.平時儲物功能會比較大,希望空間合理利用。
3.風格考慮北歐現代為主。
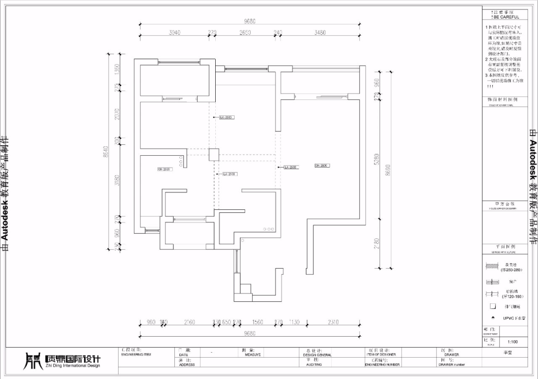
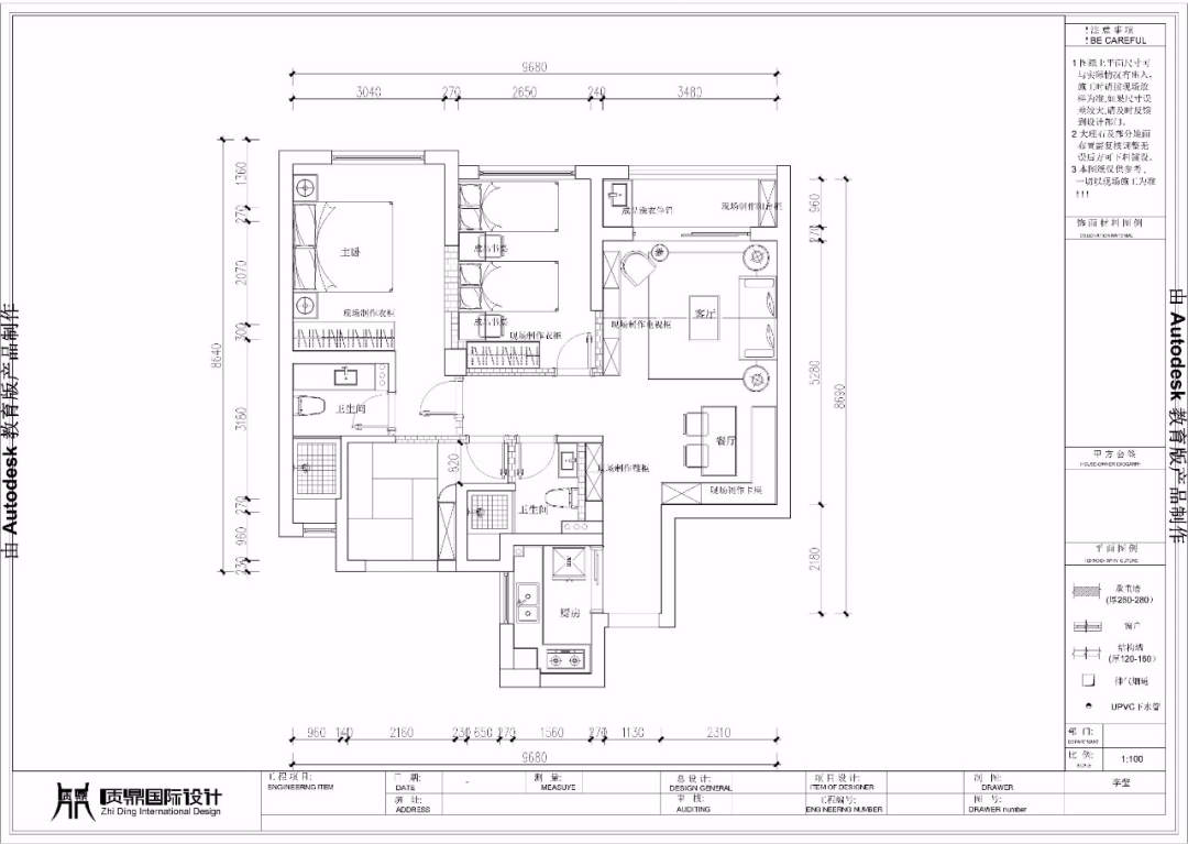
⊙設計方案(戶型圖對比)丨devise a scheme

(改造前平面圖)

(改造后平面圖)
▼玄關 vestibule
北歐風格對采光的要求高,玄關門設計成白色也是有原因,白色在燈光照射下會更明亮,所以通常利用玄關燈具的設計來烘托明朗的氛圍。玄關可以選擇一些比較有特色的來裝飾。

▼客廳 living room
生活品質的提升,促使我們去追尋更深層的享受——舒適、優雅的生活態度,同時不失品位和高貴,這就是“北歐”設計理念。

日暖陽,透過白色的窗簾,略過花架上的點點綠色,帶來勃勃生機,呼吸清新自由的空氣,一杯茶一本書,就是最好的享受。 北歐風總有它獨特的調性,超越繁花似錦的熱烈,是時光積累下來的耐人尋味的美,高冷與溫暖并存,這是一份寧靜的風情,而非虛華。

色彩選擇搭配,明朗干凈在處理空間方面一般強調室內空間寬敞、內外通透,最大限度引入自然光。在空間平面設計中追求流暢感。客廳書柜非常方便擺放東西,提升了空間。


色調上以淺色為主:米色 白色 淺木色等。

▼餐廳 dining room
餐廳采用了單面卡座,直線排開,依墻而立,既節省了空間,又讓墻面不顯得單調,實用性強。卡座下以及另一面墻設計了大量的儲物柜,讓零散物品也有個自己的家。


▼廚房 kitchen
整體灰色系,干凈耐臟,采用亞克力櫥柜,整體感覺更簡潔。北歐廚房裝修的時候對空間的顏色要求比較簡單,素雅,簡潔的顏色能讓廚房看上去更加美觀。因為廚房是做飯的地方,所以如果裝修的太花哨,會對人的情緒產生影響,淡雅的白色不僅讓空間看上去很整潔,而且也能讓人感覺很舒適。

▼臥室 bedroom
主臥時尚的床型,由此渲染了一種簡約而精致的主臥空間。窗臺朝陽灑下的光線,床頭是壁燈燈,總會給人溫馨、小資的情調。

空間設計流暢、簡潔。北歐風格在處理空間方面一般強調室內空間寬敞、內外通透,最大限度引入自然光。

▼兒童房 Children's room
滿足孩子們的娛樂需求,即趣味性,好看的墻壁插畫遠比一面白墻有意思的多,可以在墻面上繪上彩色的畫,但是盡量不要大面積使用鮮艷的顏色,以免會影響孩子的睡眠。稍微簡單一點的墻面可以用照片墻去裝飾。也可以用一些可愛或是孩子感興趣的裝飾物點亮空間,比如墻角的白天鵝,天藍色的氣球吊燈,可以讓孩子擁有童話般的童年。


▼衛生間 bathroom
北歐風格衛生間裝修的時候,不一定非要用黑色來裝修,白色的墻面裝修能讓空間看上去更加清晰明亮。墻面上的鏡子和精致的小燈裝飾,讓衛生間變得很別致,雖然不是很大氣,但是這樣的小巧精致裝修,更加受現代人的喜歡。

