145㎡現代簡約丨像詩一樣的暖陽生活
2020/10/27 0:00:00⊙業主需求丨owner demand
夫妻+兩個孩子,主臥給孩子做婚房,現代風格,主臥需要衣帽間。兩個衛生間都公用。客餐廳簡潔大氣,房間實用儲物空間多。
⊙設計方案丨devise a scheme

(改造前)

(改造后)
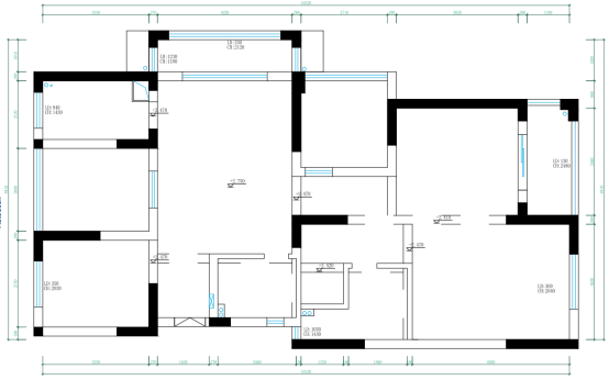
⊙戶型設計丨Apartment layout
將客廳陽臺拆除,使得客廳空間變大。廚房采用中西廚的形式,增加廚房臺面空間。主臥增加衣帽間的同時,在靠窗處增加了內飄窗、梳妝臺和書架。

▼一進門就有一種遠離鬧市的感覺,木質材料占據大部分的視野,仿佛能聞到原木的清香,整個人都放松下來。玄關柜上一束迎賓小花,讓人心生喜悅。

▼溫馨的原木搭配清新的綠植以及白色墻面和天花板,讓空間保持色彩的平衡:設計師運用相對克制的手法,打造了一個清爽舒適又不失趣味的空間。

▼在家具配置上,白亮光系列家具,獨特的光澤使家具倍感時尚,具有舒適與美觀并存的享受。在配飾上,延續了黑白灰的主色調,以簡潔的造型、完美的細節,營造出時尚前衛的感覺。

▼延伸的建筑裝飾畫,淺灰色色沙發,充滿自然生機的花藝、抱枕等這些細小的平常之物無一不是美好生活的點綴。

▼從客廳看向餐廳、玄關,動線流暢,視野毫不受限。其木質的餐桌椅,給人一種賞心悅目的真實質感、溫暖的觸感。

▼餐廳對面是廚房,靠窗處設計了西廚臺面和吧臺,增加了廚房操作空間的同時充分利用的每一縷陽光,美好的生活總能迎著和煦的日光開始。

▼廚房以白色為主,在視覺上放大了空間;使用光滑材質作為儲物柜的門面,也方便日常的清潔工作。形式簡潔現代簡約風格廚房主要的特點是形式上的簡潔,沒有不必要的裝飾線條,用直線強調空間感。給人舒適、清爽的感受,使得下班后的主人身心舒暢,減輕疲勞。

▼主臥延用木質家具,駝色墻面搭配皮質床屏和素雅的條紋床品,營造了舒適溫馨的睡眠氣氛。飄窗上設計了開放書柜,方便主人隨手放書。

▼女兒房采用了偏溫馨的淺粉色,讓人在簡約淡雅中又感受到那一份色彩絢麗之美。構造上的小創意構造上的小創意可以讓小臥室完美地展示出它的空間應用,讓小空間也更加具有擴張力和延展力。從而使整個空間更加具有層次美。

▼床頭一角,一抹并不繁復的古銅色,讓空間有了更多的清新暖意,搭配原木床頭柜和藍色的軟裝,營造出清爽的視覺感受。再配以金屬燈盞以及窗簾使整個空間透露出一種生機的舒適美
