Large-sized丨160㎡簡約美式,低調奢華的家
2020/10/29 0:00:00⊙業主需求丨Owner demand
本案業主家庭成員結構為六口之家,有兩個男孩,一個在上大學,基本周末回來。還有一個正在繁忙的高中,臥室中需要有安靜學習的地方。還有兩個老人,年紀較大,臥室希望簡潔溫暖。女業主則想要溫暖,大氣的感覺。喜歡美式風格。
⊙設計方案丨devise a scheme

(原始平面圖)

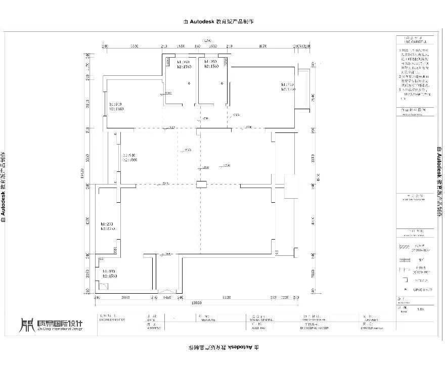
(改造后平面圖)
★戶型劣勢:客餐廳空間整體較大,容易浪費。承重墻體位置已經固定,整體格局基本固定。廚房較小,利用率不高。
☆戶型優勢:戶型很方正,有大大的落地窗,整體空間很通透。每個臥室采光都很好
√戶型改造:
廚房空間比較小,往餐廳外擴,將廚房增大,把冰箱放進去。
把兒子房間的陽光臺與臥室打通,給孩子營造了一個充滿陽光,安靜的學習區域。
過道中沿著柱子的邊做了一個開放裝飾柜,給夾長的過道增添些許趣味。
客衛做成了干濕分區,兩人同時起床不會出現搶廁所的情況
▼客廳 living room
電視背景墻以中性的香檳色乳膠漆為主調,再已石膏線造型點綴,豐富墻面。其他墻面是用偏灰的奶茶色,窗簾使用了一些出挑的顏色,點亮空間。

整體給人一種簡約大知氣的氣息,沒有反復的空間布局,每處都格外的干凈利落,而且現代實用。無論是房頂的吊燈,還是腳下的地板,沒有瑣碎多余的設計,表面光滑柔和,讓人感覺溫暖而舒適。

整體設計上回給人帶來清爽明快之感,寬敞的空間布局讓人更加舒暢,單一的色調讓人就看不膩。空間布局、色彩用用、材質的選擇,都突出了簡約又大氣的風格。
▼餐廳 dining room
強調簡潔、明晰的線條和優雅、得體有度的裝飾,注重實用性、品質感和細節。對于優雅的美式風格而言,實木材質的家具最能體現質樸醇厚的感覺,尤其是一家人用餐的餐廳,用簡約的實木餐桌裝點出溫馨舒適的感覺。

▼廚房 kitchen
注重實用價值 美式風格廚房特點就是注重實用價值。美式風格的廚房實用價值都非常高,它的設計一般比較簡潔明了,沒有什么太過花哨的設計。廚房間擴大后增加了操作臺面,且把雙開門冰箱嵌在了廚房里。

▼臥室 bedroom
現代美式臥室裝修墻面的色彩宜采用深色調、淺色調的相互搭配,通過兩種色調多變的搭配效果,烘托墻面的整體效果。主臥用深咖色乳膠漆作為墻面背景,以黃色與灰色窗簾同淺淡相配,讓這個空間整體溫暖起來。

▼大兒子臥室 Eldest son's bedroom
美式臥室風格有哪些特點美國是一個崇尚自由的,這也造就了其自在、隨意的不羈生活方式,沒有太多造作的修飾與約束,不經意中也成就了另外一種休閑式的浪漫。男孩子需要寧靜與舒緩的氛圍,以特別的灰藍色作為整個臥室的基調


▼小孩子臥室 Little son's bedroom
美式兒童房在色彩的運用上更為大膽。一些比較亮的色彩都比較的搶眼,這也是美式兒童房不同于其他兒童房的地方,僅僅從色彩上,就會讓人感受到意外和驚喜。

空間簡約,空間靈活,不單是對簡約風格的遵循,也是個性的展示。

▼老人房 Senior Citizen's Room
老人臥室需要明亮溫馨的感覺,簡簡單單的原木色系,以亮黃點綴。色彩的選擇也是挑選的簡單、素雅為主的顏色,整體看起來就會溫馨。

