140㎡現代簡約丨簡潔大氣,幸福生活
2020/10/31 0:00:00⊙業主需求丨Owner demand
本案業主家庭成員為三口之家,女業主是小學老師,寶寶剛剛出生,后面老人偶爾會過來居住,幫忙照看下孩子。
男主是在事業單位工作,偶爾會在家辦公,女主喜歡學習看書,她希望這個房子能夠給孩子提供一個健康的,快樂的成長壞境。
⊙設計方案丨devise a scheme

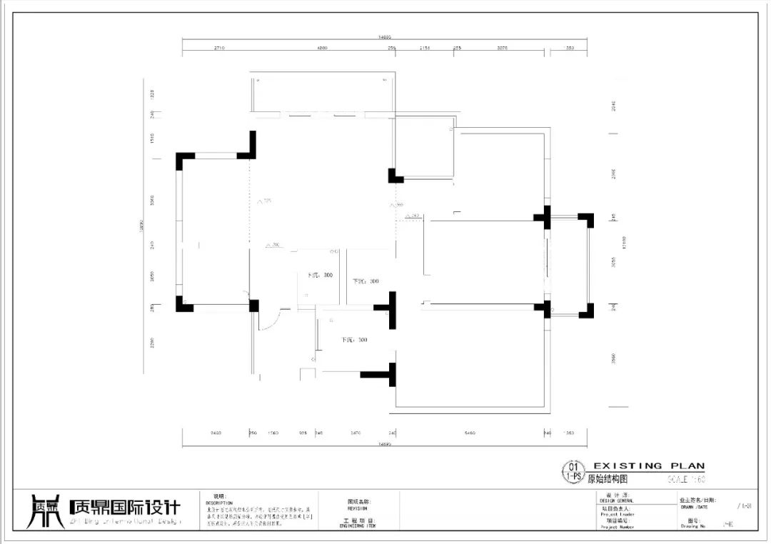
(原始平面圖)

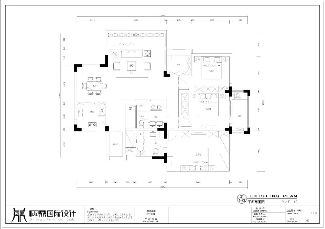
(改造后平面圖)
★戶型劣勢: 客餐廳布局不合理,沙發背景不好做,客廳的陽臺采光不足,容易浪費,兩個公共衛生間,業主家人口不多,不實用。
☆戶型優勢:戶型方正,整個空間還算通透,主臥有自己的衛生間,舒適感和隱私得到了很好的保障。因為是一梯兩戶,入戶還有一個很不錯的門廳。
√戶型改造:
客廳陽臺打掉,陽臺納入客廳,擴大客廳面積,沙發靠背做吧臺。
廚房兩邊墻體打掉,從實用性和美觀性上考慮做對稱酒柜。
兩個公衛改做一個公衛,做干濕分區。
贈送的小書房面積,進門改到客廳,增加通透性。
▼客廳 living room
整體風格為現代簡約風,電視背景采用爵士白人造大理石做造型,簡約大氣, 其余墻面用淺灰色墻布搭配,吧臺的材質與電視背景相呼應,后面一整面的裝飾酒柜,給了男女主人獨立的休閑時光。

吊頂做無主燈設計,回光增加整理室內采光,選用皮質沙發,干凈利落,旁邊的單人沙發跳色,增加了整個空間的輕松氛圍,色彩和材質的選擇都突出了簡約又大氣的格調。

▼餐廳 dining room
對稱的酒柜既有裝飾性,又有實用價值,時尚的六人位餐桌,面與腿的黑白經典配色,搭配深褐色的窗簾,營造出一個比較輕松的用餐環境。

▼主臥 Master BedRoom
整體色彩為奶白色,床頭背景采用深咖色背景,突出重點,床品的選擇也是花了心思的,搭配黑色床靠背,體現出男主人的干練,衣柜的柜體采用淺胡桃木面板,為純白烤漆面板,整個環境舒適而又自然。

▼老人房 Senior Citizen's Room
沒有太多造作的修飾與約束,老人需要寧靜與舒緩的氛圍,以奶咖色作為整個房間的基調。床頭柜上要裝臺燈,方便老人夜晚起來開燈。

▼兒童房 Children's room
在色彩上的運用大膽一些,因為是男孩,主色調為藍色,淺色的床品搭配充滿童趣的主燈,處處是驚喜。以飛機座位吊燈晚間睡覺的時候,會不會有種錯覺自己遨游在宇宙之中呢?

▼公共衛生間 Public Washroom
干濕分離,更好地解決了過多的家庭人口洗漱排隊的問題,兩個干區洗手盆,超大的鏡面柜,滿足了女主人平時化妝和放化妝品的需求,對面放洗衣機和烘干機。


▼主人衛生間 master bathroom
共男女主人兩人使用,沒有做淋浴,做了浴缸,結束了一天的工作之后,回家可以舒服的泡個澡,因為空間比較大,浴缸對面做了一組壁龕,可以收納洗漱用品和浴巾等。

