89㎡現代簡約丨格調高雅,又不失時尚氣息
2020/11/2 0:00:00⊙業主需求丨Owner demand
本案業主家庭成員三口之家,女業主是醫院護士,男業主空軍,一個寶寶是男孩,平時男女業主都比較忙,老人會過來幫忙照顧孩子。他們都比較喜歡現代簡約風格。
☉設計方案丨devise a scheme

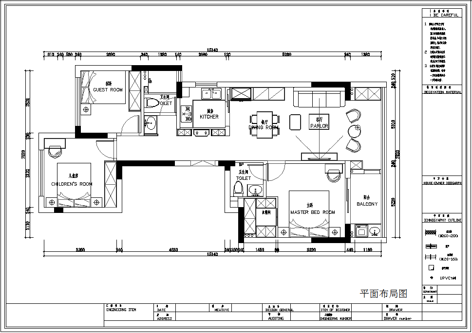
(原始平面圖)

(改造后平面圖)
★戶型優勢:兩個陽臺都比較大,三個房間采光較好。客廳陽臺和主臥陽臺比較大,整體采光都比較好,北邊兩個房間的窗戶也比較大。
☆戶型劣勢:進門就是一堵墻,會很壓抑,主臥比較小,儲物空間比較少。客餐廳空間整體較小,客廳電視背景墻比較小。進門就是廚房的一面墻,比較堵,也比較壓抑,主臥空間比較小,儲物空間也比較少。
√戶型改造:
將贈送面積擴進兒童房,增加兒童房面積
進門墻體打掉,做對稱鞋柜,中間放玄關柜及裝飾畫,為進門增加亮點。
客廳陽臺拿掉移門
主臥陽臺做洗衣區,更改客衛門洞位置,做干濕分離。
▼玄關 vestibule
入戶門對面做一排鞋柜,增加進門及過道儲物空間,做進門玄關,增加進門亮點,綠色墻漆給空間增添生機。

▼餐廳 dining room
冰箱嵌進餐廳儲物柜內,為廚房空出活動空間,廚房臺面較少,女業主準備將自己的小烤箱放在餐廳儲物柜上,拿取更方便。


▼客廳 living room
主臥門和電視背景墻一起定制做隱形門,客廳背景更顯簡約大氣。客廳陽臺與主臥陽臺預留門洞,父母去洗衣陽臺也不必經過主臥。


放置一個簡約三人沙發搭配一個休閑椅,兩幅裝飾畫靠邊擺放,尋求裝飾上的個性,一盆綠植,為整個空間增添生機。

▼臥室 bedroom
主臥衛生間改小,去掉淋浴房功能,做了步入式衣帽間,增加主臥儲物空間。

▼衛生間 bathroom
客衛做干濕分離,干區做半高墻體,上面定制長虹玻璃隔斷,增加干區采光。

