現代極簡,舊公寓改造,環繞動線讓小房顯寬敞
2019/8/2 14:29:04
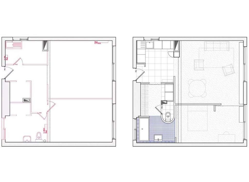
正方形的小公寓,面積只有50平方左右,為了利用好小空間,重新規劃空間,打通衛生間、開放式廚房,客餐廳一體的布置,實現了一個輕松舒適的居住氛圍。

玄關進門就是開放式的廚房+小餐桌布置,讓小空間也充滿了家的溫馨感。

小小的廚房,餐桌居中布置,小空間也實現了常規的餐廚使用體驗。

客廳地面墊著灰色的地毯,一張灰藍色的布藝沙發,搭配藍色的矮書架,結合粉橙色的休閑椅,讓空間顯得沉穩安靜而活躍。

玻璃罩造型茶幾,靠墻的淡藍色裝飾畫,還有裸露的天花橫梁,整體設計簡約大膽而端莊。

臥室空間以深藍色的布簾隔斷,呈現出一種安靜優雅的舒適空間。

臥室以深藍色的空間,天花的水泥質感橫梁,整體安靜與粗獷的搭配,讓空間顯得靜雅舒適而端莊。

在深藍色地面與墻腳磚的搭配下,一個洗手盆與浴缸設計,為主人提供了一個靜雅舒適的衛浴體驗。
