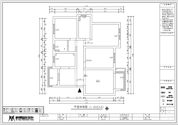
選擇一個喜歡的家裝風格是裝好新房的第一步,家裝風格不僅要自己住得舒服,還要對外展示其風格特色。今天這套就是夫妻裝修,設計師根據業主的設計要求,給出了以下設計方案。
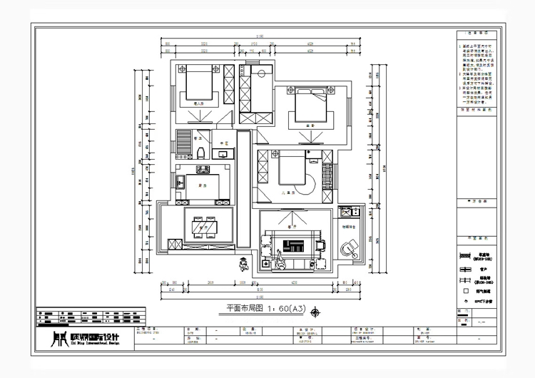
現今社會,人們生活品質的提升,促使人們去追尋更深層的享受——舒適、優雅的生活態度,品位和高貴并存,輕奢風的出現,贏得了無數年輕人的喜愛。 業主是一對夫妻,夫婦倆有一個8歲的女寶寶,父母偶爾會來住,房子是老房子,這次舊房翻新,主要是因為家里人員比較多。原本的房子會有些擁擠,老人住的不舒服,家中積蓄有限,暫時無法購買新房,準備做舊房改造。經過朋友推薦,所以找到了我們,幫忙進行此次裝修。 裝修需求是:因為家里人員原因,想要把家庭儲物空間增多一些,讓空間變寬敞一些。設計師了解到業主需求后,立馬設計了一套適合的方案。 客廳 客廳電視背景墻采用的是大理石加鈦合金線條,高級又有品味,扎染地毯增添了一些藝術感,讓整體空間奢華卻不高調,大氣又沉穩。后面的兩層布藝窗簾,采用的格子圖案,不會花哨,也不會單調,搭配的剛剛好。 廚房 廚房改成L型設計,合理利用了拐角,讓整個空間能合理分配洗、切、炒三個工作區域,分布十分合理。深灰大理石與淺胡桃木色櫥柜相互映襯,深灰大理石富有高級感,淺胡桃木又很溫馨、有煙火氣。上方的吊柜,下方的櫥柜,讓儲物空間多了一倍。 主臥 主臥采用北歐美式雙人床,柔軟舒適的床墊,簡潔大方的色調,讓夜晚的睡眠更加美好。地面的毛絨地毯很好的呵護家人的安全,床尾凳巧妙的顯示了主人的品味,可以防止被子滑落,睡前放置衣物物件,可以看出設計師從細節上提升了臥房品質。 次臥 次臥的設計相對簡潔一些,但是設計師悄悄留下了些小心機設計,床頭背景墻用創意極簡裝飾,讓墻面不再單調,極富美觀性。黑白灰色調在臥室并沒有顯得沉悶,完全歸功于茱萸粉的抱枕與實木地板。 兒童房 8歲的小女孩正式愛美愛幻想的年紀,將整個房間裝成嬌嫩的粉色,床頭背景墻畫上萌萌的圖畫,毛茸茸的可愛玩偶,哪個女孩能夠抵抗的了呢?臥室飄窗打造成榻榻米,孩子在上面玩耍也不會出現安全問題,定制榻榻米自帶上翻柜和抽屜柜,多個隔層放些孩子喜愛的玩偶或者相冊書籍,都是十分不錯的選擇。 這次的舊房改造無疑是成功的,裝修完工,業主一家十分喜歡,不僅房間變得寬敞了,連風格都完全不一樣了,顯得高大上極了! END 200+ 300+ 資深設計師 自有施工團隊 99% 1000+ 好評調查 施工人員 【上海浦東店】 浦東新區嶗山路288-3號(2號線東昌路站) 【上海浦西站】 閔行區七寶新龍路1333弄28號萬科國際二期31幢 【杭州蕭山店】 蕭山區市心北路868號農業大廈2號樓20樓(2號線振寧路A出口) 【吳江店】 仲英大道789號(4號線江興西路4號口) 【無錫店】 縣前西街119-3號(762、112路五愛北路)站 【慈溪店】 三北西大街229號(3路古塘綠苑站) 【蘇州店】 姑蘇區中街路152號 質鼎國際設計 給您全新體驗 想要了解更多裝修風格和知識 長按下圖關注








