家是一個很溫暖很完美的詞。很多人問過我家是什么,我也經常問自我,此刻的我看來,家在心中;設計不僅僅僅僅僅要在“情理之中”,還要“出其不意”! 家是一個很溫暖很完美的詞。很多人問過我家是什么,我也經常問自我,此刻的我看來,家在心中;設計不僅要在“情理之中”,還要“出其不意”!

原始結構圖
業主需求
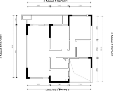
平面布置圖
設計思路: 一.考慮小孩的娛樂區域,大陽臺一份為二,一部分包到臥室可以給小孩子一個娛樂的空間。 二.考慮到 ,以后會有長輩和客人,衛生間做了開始分離,但是考慮衛生間對公共區域有影響做了隔斷,在保證陽臺功能的的情況下 客廳有略微外擴。
客廳
客廳空間有限,但如果用“延展”的思維去思考時,局限的空間也能有無限的表達。
白色為主色調,沙發背景用了灰藍來凸顯,空間運用了橙色作為跳色,使得空間更加飽滿;胡桃色的家具的木質元素帶來溫暖感受。
北歐風總有它獨特的調性,超越繁花似錦的熱烈,是時光積累下來的耐人尋味的美,高冷與溫暖并存,這是一份寧靜的風情,而非虛華。

「輕生活」
·
「慢節奏」
在這光怪陸離的城市里浮沉多年,也許早已發現,世界上最不平凡的美是來自家的美。
餐廳
餐廳與客廳氣息相通,在設計這塊區域的時候賦予了它更多的生活元素,功能上也更加健全。家具經過精挑細選,更貼近原始的質感。看似高冷的色澤當中,不乏自然的生活痕跡。
置物架兼具儲物、展示的功能,給客餐廳增加更多的靈動空間。

干區與餐廳增強了互動性,也給客餐廳增加了一道風景線,加入了綠植與木隔斷,融入了大自然的親切感。
臥室
每一次小禮品用心收藏,方寸之間,成為了一個小世界...
飽和度的色彩配合高質量的選材,為業主夫婦打造極佳的睡眠體驗。吊燈經過精挑細選,將年輕時尚的元素與房間進行融合。

原木色的裝飾柜,回歸到空間最本真的感動中,安然入眠之后釋放出活躍有力的生命氣息。