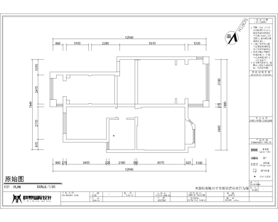
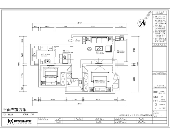
這是一套90㎡的兩室一廳戶型,整體空間上來說面積不是很大,以現代簡約裝修風格為主,從前期平面布置上我們考慮溫馨自然的家居為主,從小戶型的空間下,打造出一種溫馨舒適的富有愜意的家。



客廳整體的空間從色調上來看主要以暖色調為主,布置灰色的布藝沙發,主燈選用了比較獨特的多頭球形裝飾整個客廳,墻面的暖咖色,讓客廳的整體空間充滿了簡約自然的溫馨舒適感。


沙發背景墻選用比較精致的壁畫來裝飾整體的空間,沙發旁的邊幾上放置一個綠植,美化整體的空間,沙發旁的臺燈也是比較出效果的,如果你家也喜歡這種的布置話,可以借鑒一下吧。



餐廳與客廳在一條線上,右手邊的廚房門改變位置,用柜子堵住原來廚房門的位置。

小臥室裝修,不僅實現了學習、休息和儲物的功能,而且讓小空間合理的最大化利用。

臥室地面考慮木地板,從裝修方面上相對比較簡單,其家具主要有床、床頭柜、收納衣柜等。


以設計之手在空間里雕琢出生活的韻味,感知一切心儀之物帶來的滿足與溫暖