業主為一對年輕的夫婦,上班族,喜歡簡潔,明快,有情調的空間氛圍。這套閣樓是用來旅居休閑所住。 設計為經典的北歐風格,打造一個白色和木色系溫馨的家。



本方案在設計上追求功能與形式完美統-,優雅獨特,簡潔明快。針對這一主題,設計上以協調各功能空間的使用要求為目的,布局上力求合理,功能上力求完備,動線計劃上爭取做到暢通合理,滿足功能要求,同時又給人以藝術之美感。創造出空間美,簡潔的面與面結合,虛與實的對比,簡單的線條。通過高品質的材料與精細的做工來表達一種生活態度。




針對上班族,設計采用簡約明朗的線條,將空間進行合理的分隔。面對擾攘的都市生活,一處能讓心靈沉淀的生活空間,是本房業主心中的一份渴望,也是本設計在方案中所體現的主要思想。因此,開放式的大廳設計給人以通透之感,避免視覺給人帶來的壓迫感,可緩解業主工作一天的疲憊。沒有夸張,不顯浮華,通過過于干干凈凈的設計手法,將業主的工作空間巧妙地融入到生活空間中。



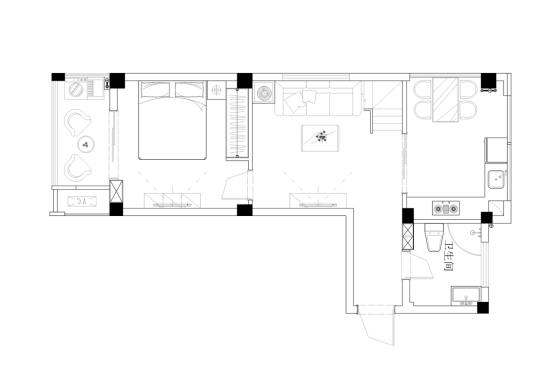
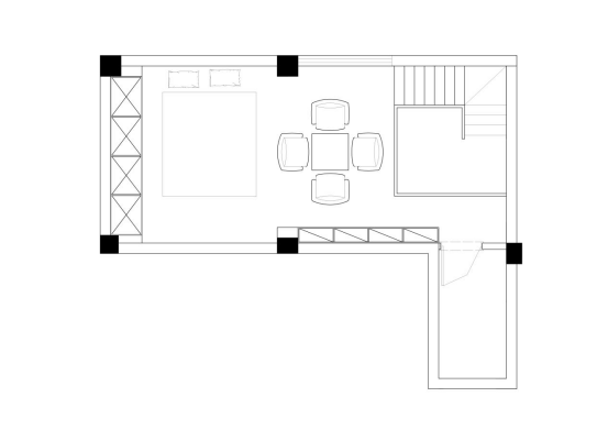
巧用文化磚、高踢腳線、白墻、原木色,主臥以雙開門的形式讓客廳與主臥之間更通透敞亮聯系更緊密。餐廳與廚房合并為一個空間,百葉大窗保證透光性的同時,美觀舒適,坐在這兒,耳邊響起輕快的音樂,看著喜歡的書,這將是多么美妙。閣樓榻榻米與休閑區域的設計,使得閣樓空間得到充分的利用。在外墻開了一個窗戶,不影響結構和美觀的同同時,保證了閣樓的采光和通風性。



