本案位于魔都中心位置的黃浦區,建筑面積150m2三居室;屋主是一對年輕夫妻,第一次見面是在量房時候,劉先生夫妻倆跟我們聊了自己的想法,對房屋格局上的不合理希望得到改善;風格喜歡北歐的簡約、自然,沒有束縛的感覺。設計師將房子細節做了優化,將房屋動線合理化;以清新的北歐風為主,完工效果極具自然感。

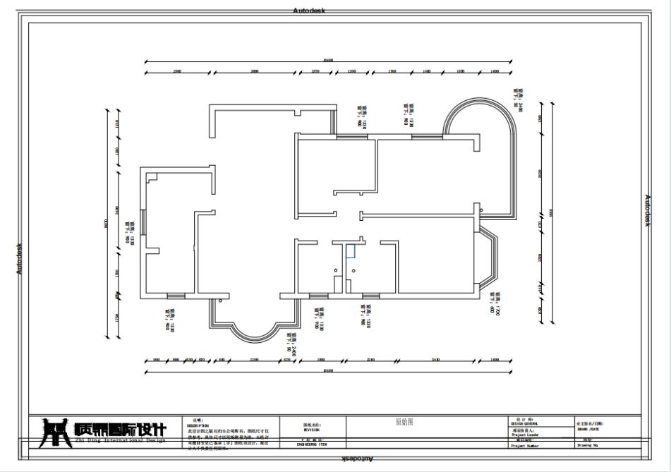
原戶型較方正,窗戶多也讓屋內采光和視野都非常好,但是屋內構造使空間看起來有點狹窄,動線不合理,需要做相應的調整。

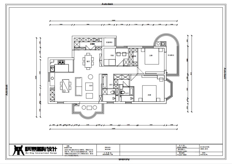
整體改動以下幾點,使空間合理化,使用率提高,增加收納需求,同時在外觀上也得到了很大的改善。
1、原入戶處左側有一個比較寬敞的空間,只做鞋柜會比較浪費,設計師將此改為一個衣帽間。
2、廚房一分為二,改造一個中廚房一個西廚,飲食也多了一個選擇。
3、在兩個臥室之間,原戶型的構造比較復雜,有些地方比較浪費;設計師把這些地方重新規劃后,看起來更簡單也更整潔,空間得到合理利用。

玄關柜安裝燈帶的設計,體現現代感,也增加了空間的明亮感。
左邊有一面白墻,擺放一個原木的邊柜和一面全身境;全身柜的作用自不用說,柜子上擺放了見證小兩口愛情的婚紗照;柜里收藏了一些屋主喜愛的酒品,增加空間的美感。
餐廳、衣帽間、玄關柜三合一設計,且互不干擾;中間是衣帽間的門,兩邊柜子向外,左邊為鞋柜,右邊展示柜擺放書籍。

大面積白色搭配原木風,實用性與舒適性并存;看似隨意的擺放,實則精心設計;陽臺拱型門洞凸出北歐特征。

整體搭配干凈、明朗,舒適又溫馨,給人一種歲月靜好的感覺。

開放式的設計使視野開闊,讓空間看起來寬敞明亮。

各空間之間相互連通,利用吊頂區分不同的空間,起到隔斷兩個功能區的作用。

原木色地板通鋪整個空間,搭配一些原木的家具,再加上陽臺射入的陽光,使簡約的空間溫馨、愜意。

客廳陽臺大落地窗,紗簾增加溫馨感。

主臥陽臺與臥室之間打通,擴大空間效果;綠植凈化空氣,點綴整個空間。

淡藍色的墻漆刷新,墻面掛飾進行點綴。

餐廳后面即是隔出來的衣帽間,儲物空間非常充足;門外兩側擺放書籍,將空間利用最大化。

將廚房一分為二,烹飪區做傳統封閉式,以北歐風格定位,小白磚上墻,有擴大空間的視覺效果;櫥柜用白色吊柜搭配原木地柜,U型櫥柜增加收納及操作空間。

另一部分與客廳打通,靠客廳打造了一個吧臺;靠墻這面墻,一邊做擺放蒸、烤箱、冰箱的空間,以嵌入式的擺放看起來更整潔。另一邊則是櫥柜的延伸區。

閑暇時光坐在吧臺品品茶,與愛人共飲一杯,觀賞喜歡的影片,也是非常美好的。

主臥有一個超大落地窗陽臺,再加上床北的大玻璃窗,使空間非常明亮;明亮的空間大膽的選用業主喜歡的綠色進行裝飾,充滿生機盎然。

主臥里面還有一個小的衣帽間,黑色玻璃移門有拉伸視覺的效果。

整體墻面用薄荷綠乳膠漆刷新,營造清新脫俗的居住空間。

次臥相對比較溫馨,改用奶茶色刷新,床品搭配也比較溫馨。超大的飄窗讓次臥采光充足,也多了小憩的空間,冬天還能曬曬太陽。

次臥設計比較巧妙,儲物柜在進門后臺,對臥室里面的活動空間毫無影響。

奶茶色的乳膠漆墻面,搭配原木色地板,簡約但溫馨。

簡約的書房設計,滿足在家辦公需求。

簡易的空間設計,三幅裝飾畫起到點綴效果。

客衛干三濕三分離處理,提高生活效率,可以多人同時使用;打掃衛生也更加方便,也有效的增長衛生間設備的使用壽命。

主衛較小,簡單的干濕兩分離已經足夠使用。色彩搭配清新有創意。