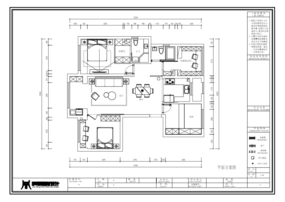
設計理念:家,是一個能給我們帶來幸福感的地方,而這種可貴的幸福,不是由刻意奢華、一擲千金的排場堆砌而來,而在于生活的普普通通、自在本真——活得優越,活得精致,都不如活得,有生活的”煙火氣“。 設計師與業主經過不斷的溝通與磨合,最終呈現出這套現代輕奢風格案例。



客廳采用大面積的白色調的大板磚,輕奢的背景墻設計。木飾面與線條的變化與簡潔派家具以及隱藏門的設計,構成了空間的全部材料,給人以簡單,純粹的空間享受。

灰白色的冷色硬裝空間,搭配了橙色的皮質沙發,冷暖結合。

局部的灰色電視柜點綴,形成強烈對比,無線擴展空間尺度,做出了極強的韻律感。

墻面統一本白色乳膠漆,與灰色大理石紋路瓷磚碰撞,加上燈光的點綴,整個客廳高端大氣上檔次。

客餐廳一體設計,沒有任何阻隔,空間通透、寬敞。線條感十足的餐桌腿,搭配淺咖的座椅,金色邊框玻璃柜門的酒柜無聲配合,從色彩上、形態上相互呼應。

餐廳材質與色彩搭配,與客廳和諧統一,空間呈出和諧、寧靜之美。

U型櫥柜設計,空間充足,擺放雙開門冰箱也不顯擁擠。廚房采用整體冷色調,白色瓷磚白色柜面迎來自然溫暖氣息。

臥室延期了整體的本白色,搭配黑色床具與灰色床品,簡潔舒適。

簡潔的主臥設計,打造溫馨靜謐的休息氛圍。

無不透露出高雅,外加衣帽間的設計,實用與品質的結合。簡簡單單,舒舒服服。

主臥衣帽間兩排衣柜設計,灰色的板材更顯檔次。

次臥榻榻米打造的空間,儲物空間也是非常充足。

整體都是灰白色的搭配,空間理性而又充滿語言。

浴室對比鮮明 ,簡潔的瓷磚 ,簡潔大方。

主臥衛生間空間也是比較足夠的,功能齊全,一家人使用也更加方便。

陽臺柜預留擺放洗衣機及烘干機,疊放更節省空間。

白色為主色 ,簡單的高低床 ,白色書桌營造一種舒適的感覺。