這套房屋業主是一對80后夫妻,他們想給老人們置辦一套裝修風格溫馨的房屋,設計師根據他們的要求給出了以下設計方案。
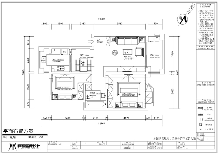
隨著生活節奏的加快,越來越多外地工作的年輕人陪伴在父母身邊。即使不能時常在身邊,如果可以的話,給父母一個舒適安全的家,也非常暖心了。 爸爸媽媽年紀大一些,行動不會很方便,所以在房子的裝修上面就需要多花些心思啦,細節一定要注意到哦!今天這套就是業主給爸爸媽媽的暖心的禮物啦!趕快來看看吧! 設計故事 業主是一對80后夫妻,因為常年在外工作,在家陪伴父母時間少,今年給父母準備了個房子,希望能讓爸媽住的安心舒適一些。家里裝修整體色調要簡潔明亮一些,儲物功能要多一些,因為老人比較喜歡泡澡,所以衛生間浴缸是少不了的。 在了解業主的需求之后,鈕為霞設計師心里就有了一些想法。簡潔明亮的現代風正好滿足了業主的要求啊!整體以黑、白、灰為主色調,局部貫穿木色,沉靜不失溫馨呢! 原始圖 平面布置圖 玄關 玄關的設計留出了足夠大的空間,為了老人活動更方便。用一個以胡桃木色為主色,白色做點綴的立柜做隔斷,留出一部分空間連接到客廳,立柜可以作為一部分的儲物空間。不會很夸張,也很美觀,與旁邊淡灰色的沙發凳莫名很和諧呢。 考慮到老人腿腳不便,會不方便蹲下,所以換腳凳還是很必要的。沙發凳作為顏值與實力并存的物品,換腳凳的任務非他莫屬了。 客廳 整體色調沒有選用純白的大白墻,冰冷的大白墻容易給老人帶來孤獨寂寞的感覺。所以設計師選用了更為溫暖的米白色,這樣房間立馬變得溫馨舒適多了。經典的胡桃木色電視柜,柔軟舒適的布藝沙發。 想象一下,爸爸媽媽休閑的時候,坐在柔軟的沙發上看著電視,多么美好啊。將胡桃木色系融入現代家居設計中,色調中洗去黑白灰的輕佻,細膩的木紋保留著時光的痕跡,時尚且有質感!大大的窗戶提供了很好的采光,整個房間顯得寬敞明亮。 餐廳 餐桌椅同樣用了很受父輩喜愛的胡桃木色,經典耐看,沒有刻意的繁花雕飾,只有細膩的木質紋理。不會過于亮麗浮夸,反而給整體增添了一絲色彩。很適合老人裝修。 廚房 廚房用的是u型的設計,u型廚房對于空間的利用率比較高,能夠將烹飪區、儲存區等各個部分設置的十分分明,所需占用的空間范圍比較大。這樣爸爸媽媽在做飯時不會擁擠,可以有個相對獨立的烹飪環境。下面的櫥柜還可以提供所需的儲物功能。 這樣爸爸媽媽在做飯時不會擁擠,可以有個相對獨立的烹飪環境。下面的櫥柜還可以提供所需的儲物功能。 主臥 主臥延續整體素雅,低調的風格,乳白的被子,木色的大床,用藍色的窗簾做房間色彩的點綴。讓房間不至于單調,產生審美疲勞。老人的臥室最重要的就是通風,房間打出兩扇窗戶。白天充足的光照,適當的通風,能讓老人身心舒暢。 采用局部照明,主色調用暖光照明,給人一種溫暖的感覺,開關設置放在了床頭,方便老人起夜。 次臥 整體色調比較簡潔,素雅的床,白凈的柜子,再配上床頭的藝術畫,溫馨柔和。偶爾家里來客人小住,也會很舒適溫馨。 衛生間 因為有浴室要放浴缸的要求,所以設計師就在浴室放上了一個長方形浴缸,比起圓形浴缸,方形更省空間,放在洗手池旁邊,也方便拿洗漱用品。3個開關設計讓水流更快,不會等的太久,方形大噴頭增加淋浴面積。讓泡澡和淋浴可以隨意切換。 裝修完工,業主帶著爸媽看新房,爸媽看著房間,滿眼都是喜歡,看著孩子的孝順,滿心都是感動。業主也非常滿意,每處設計都貼心的為老人考慮,甚至將他們沒想到的都考慮進去了。 裝修完工,業主帶著爸媽看新房,爸媽看著房間,滿眼都是喜歡,看著孩子的孝順,滿心都是感動。業主也非常滿意,每處設計都貼心的為老人考慮,甚至將他們沒想到的都考慮進去了。 END 200+ 300+ 資深設計師 自有施工團隊 99% 1000+ 好評調查 施工人員 【上海浦東店】 浦東新區嶗山路288-3號(2號線東昌路站) 【上海浦西站】 閔行區七寶新龍路1333弄28號萬科國際二期31幢 【杭州蕭山店】 蕭山區市心北路868號農業大廈2號樓20樓(2號線振寧路A出口) 【吳江店】 仲英大道789號(4號線江興西路4號口) 【無錫店】 縣前西街119-3號(762、112路五愛北路)站 【慈溪店】 三北西大街229號(3路古塘綠苑站) 【蘇州店】 姑蘇區中街路152號 質鼎國際設計 給您全新體驗 想要了解更多裝修風格和知識 長按下圖關注









