這套房屋業主是70后的家庭,因為念舊放棄買新房,但是家里又實在有點小,住著不舒服,所以想重新裝修一下,想讓家里的空間大一些,設計師根據他們的設計要求給出了以下設計方案。
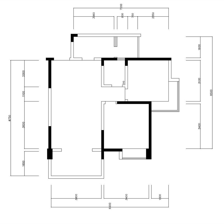
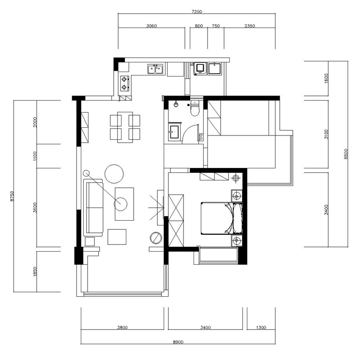
你還在苦惱小戶型采光不夠?陽臺太窄?廚房太小?儲物空間不足?那你要好好考慮該如何裝修了。今天這個案例可以給你帶來一些靈感。快來看看梁悅君設計師是如何設計的吧! 這套來源于一個70后的家庭,李先生和妻子住在這個小區有些年頭了。想要重新買房子,因為念舊又放棄了,但是家里又實在有點小,住著不舒服。 兒子工作后就鼓勵自己重新裝修一下家里,所以就找到了我們,希望我們能幫忙設計一套適合他們,又顯空間大的裝修方案。梁悅君設計師連夜設計出了這套方案,給李先生和妻子看過之后,兩個人很是欣喜,希望能趕快看到新家。 原始圖 從原始圖上,能看到此戶型較小,面積只有78㎡,儲物空間非常不足。餐廳位于動線上,對著入戶門。小臥室L型窗戶,空間較小。廚房有效面積不能滿足使用、采光不足。生活陽臺有點狹窄,面對這樣的區域,多出了很多不理想結構。 平面布置圖 設計師想出了采用開放式廚房和開放式淋浴房的設計。這樣就解決了廚房使用面積不足和餐廳動線不理想等諸多問題,同時還加大了整個戶型的空間視野。讓整個小戶型轉變的更加時尚,也更符合了業主的生活習慣。 客廳 李先生和妻子在城市中生活慣了,最希望得到的就是陽光充裕的生活空間。進門即是客廳,開放式空間,白墻、原木地板、原木復古家具,沒有多余的雜物,整個房間都顯得清爽寬敞了許多。 大屏電視機,搭配桃木色電視柜,加上略帶設計感的座椅,不會很都市,但也不刻板老氣。打造出獨屬于業主的日式格調。 餐廳 深灰色的桌布,細腳凳的餐桌,讓整體都變得輕盈許多,從而讓空間顯得大了不少。餐廳與廚房隔門對望,增加了廚房與餐桌上的人的互動性,讓做飯不再枯燥無聊。 想象一下,恩愛的夫妻,一個在廚房做飯,一個望著愛人忙碌的身影,時不時到廚房幫忙,也會被愛人寵愛的罵走,讓你在餐桌上等著投喂。墻上充滿藝術感的壁畫,創意幾何的掛飾,不規則體積的置物架,都給這個日式格調中增添了幾分藝術氣息。 廚房 走進廚房,依舊沿用日式胡桃木色,搭配大理石白瓷磚。上面的吊柜,大大增加了儲物空間,可以用來放置家電、電器之類的大件物品。 旁邊的置物架,用來放廚具最適合不過了。再也不用擔心廚房的瓶瓶罐罐,發生擺放不整齊、找不到之類的問題了。 主臥 主臥就用低調內斂的灰色,搭配胡桃木的小書桌。因為業主的需求是寬敞,簡潔。所以就舍去了床頭柜,改成在一側放置一個小書桌,可以作為一個簡單的辦公區域。平時坐在這里,安靜的看看書都可以。 墻面上搖臂燈,可以在晚上閱讀時做照明使用,比起吊燈,小小的搖臂燈更靈活,照明更加柔和。適合在臥室使用,營造柔和的睡眠環境。 主臥的飄窗位置,利用百葉簾的設計,增加了整體的通透感,增加了室內采光的需要。 次臥 次臥的采光通常要稍差一些,所以采用半透明的白紗簾,外加一層布藝窗簾。白天就可以把布藝窗簾合起來,增加采光,晚上就可以放開窗簾,保持居室的私密性。 衛生間 衛生間整體空間不大,但是位置放的好,空間就會顯得大,超大的洗手池,半圓形淋浴房,全黑色噴頭,顯示出一種高級感。 用浴簾做干濕分離,把洗手池與淋浴房很好的隔離開來。座椅在細節上做到了特別和精致,整體顏色以灰色水泥為主搭配花色地磚。讓整體空間變得豐盈起來,設計感十足且實用性高。 裝修完工后,第一時間讓李先生和妻子驗收。兩人看到裝修后的樣子,不敢相信這是他們生活了好些年的房子,房間顯得大多了,還很有設計感。對于這次的設計很滿意,李先生還說,兒子以后結婚的新房還要找我們設計呢~ END 200+ 300+ 資深設計師 自有施工團隊 99% 1000+ 好評調查 施工人員 【上海浦東店】 浦東新區嶗山路288-3號(2號線東昌路站) 【上海浦西站】 閔行區七寶新龍路1333弄28號萬科國際二期31幢 【杭州蕭山店】 蕭山區市心北路868號農業大廈2號樓20樓(2號線振寧路A出口) 【吳江店】 仲英大道789號(4號線江興西路4號口) 【無錫店】 縣前西街119-3號(762、112路五愛北路)站 【慈溪店】 三北西大街229號(3路古塘綠苑站) 【蘇州店】 姑蘇區中街路152號 質鼎國際設計 給您全新體驗 想要了解更多裝修風格和知識 長按下圖關注
裝修故事![]()









