這個房子主要是一家三口,小朋友現在剛十個月,以后需要自己的房間。屬于舊房翻新,清新北歐風格


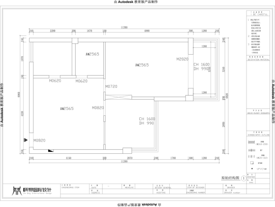
戶型優劣勢分析
戶型劣勢:房齡已經20多年,格局改動有限,墻體基本不能動。客廳采光相對又比較局限,且客廳也沒有電視墻
戶型優勢:戶型很方正,有兩個大陽臺。主臥比較大。
戶型改造:
客廳的陽臺改成了四扇移門,增加了一個榻榻米房間。然后再將廚房的門擴大,變成雙扇玻璃移門,將衛生間的門往右邊移,也用了一扇磨砂玻璃門,剛好中間可以掛下一個電視機,客廳里使用了較多玻璃元素使空間更加寬敞通透,整體布局動靜分區明確,動線清晰。

設計師以灰綠色的墻面打底,再以白色線條運用其中,添加一些原木元素,給與居住者一份清新與明快的氛圍


設計師在灰藍色乳膠漆背景墻的主體下,搭配上黑色麋鹿壁畫作為床頭背景,同色系的窗簾淺淡相配,讓這個顏色虛虛實實溫潤起來。

主臥做了步入式的衣帽間,滿足了女主人的儲物要求。

利用改動后的陽臺做了一個榻榻米房,榻榻米房中空間雖小,但是衣柜,書柜,書桌,玩具柜都是齊全的

