今天這套案例是夫妻裝修,整體空間以簡約原木風格為改造基調,通過閑適輕松的空間與自然舒適的原木質感,再以室內窗通透的設計,把房屋改造成一個充滿輕松愜意氛圍的空間。設計師根據業主的設計要求,給出了以下設計方案。
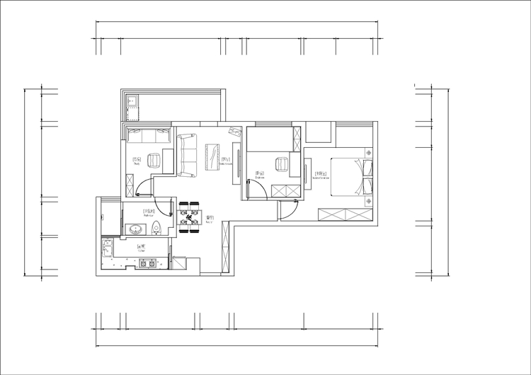
原木,一個樸實生態的元素,當它融入純白色的現代空間中,不但沒有格格不入的生硬感,反而為單調的現代空間加了一抹自然樸素的亮色,木質的紋理不事雕琢卻超然脫俗,締造出一縷回歸自然的淡泊心境。 裝修故事 業主是一家三口,胡女士和丈夫,還有一個一歲多的兒子。夫妻倆近期買了新房,對于裝修不是很了解,于是找到我們,希望我們幫助他們裝修新家。 裝修需求是兩個人都喜歡日式那種自然風格,簡單舒適,設計師在了解業主的裝修需求后,當天晚上熬夜設計了這套方案,第二天拿給胡女士一家看的時候,當場通過了這套方案。 客廳 當清晨第一縷陽光透光百葉簾灑進房間,閉上眼睛,摩挲著木紋,仿佛置身于大自然,感受著年華的印記?;疑z絨質感的超長沙發,舒服的讓人累了日常蓋個毛毯就能睡著。無意間被做成了隔斷設計,隔斷了辦公區與娛樂區的界限。 充滿暖意的原木家具,清新而又樸實,極凈的純白色空間中調和淡淡的木色,整個空間彌漫著文藝素雅之風。原木的電視柜搭配黑色超大電視機,自然中帶點高級感。 餐廳 當清晨第一縷陽光透光百葉簾灑進房間,閉上眼睛,摩挲著木紋,仿佛置身于大自然,感受著年華的印記?;疑z絨質感的超長沙發,舒服的讓人累了日常蓋個毛毯就能睡著。無意間被做成了隔斷設計,隔斷了辦公區與娛樂區的界限。 充滿暖意的原木家具,清新而又樸實,極凈的純白色空間中調和淡淡的木色,整個空間彌漫著文藝素雅之風。原木的電視柜搭配黑色超大電視機,自然中帶點高級感,同時也兼具了收納功能。 廚房 從來沒想過原木吊柜與灰色地板竟是如此般配!L型廚房社設計讓整體看起來整潔干凈,空間利用率很高,連房間拐角都不會錯過。 主臥 主臥的設計以簡約舒適為主,純白背景墻搭配實木地板,這樣單純的色調看著著實舒服。而臥室里也沒有太多繁雜的裝飾設計,都是簡單實用的,個性設計的吊燈,讓臥室顯得更有格調了。 三層布藝窗簾白色+棕色,自然中不失雅致,窗簾外的小心機——飄窗,放上毛毯和抱枕,就變成了小小的娛樂空間。 次臥 次臥打榻榻米組合柜,讓臥室結合儲物功能,又能當書房使用,功能性強大比較節省空間!柜子中間留空,可以作為床頭柜使用,放些裝飾品,或者放上每日睡前看的書籍,真是一大貼心設計。 衛生間 衛生間的設計最顯眼的莫過于掛在墻上的日式實木圓鏡,在幾何線條的大理石臺面上格外吸睛。狹長的臺面,讓空間不再擁擠,早上夫妻倆也不用搶著照鏡子了。 在經歷現代社會浮華的洗禮后,大家越來越向往這樣不加修飾的風格了,裝修完工,胡女士直言這就是她一直向往生活的家! END 200+ 300+ 資深設計師 自有施工團隊 99% 1000+ 好評調查 施工人員 【上海浦東店】 浦東新區嶗山路288-3號(2號線東昌路站) 【上海浦西站】 閔行區七寶新龍路1333弄28號萬科國際二期31幢 【杭州蕭山店】 蕭山區市心北路868號農業大廈2號樓20樓(2號線振寧路A出口) 【吳江店】 仲英大道789號(4號線江興西路4號口) 【無錫店】 縣前西街119-3號(762、112路五愛北路)站 【慈溪店】 三北西大街229號(3路古塘綠苑站) 【蘇州店】 姑蘇區中街路152號 質鼎國際設計 給您全新體驗 想要了解更多裝修風格和知識 長按下圖關注








